Spine House
Spine House
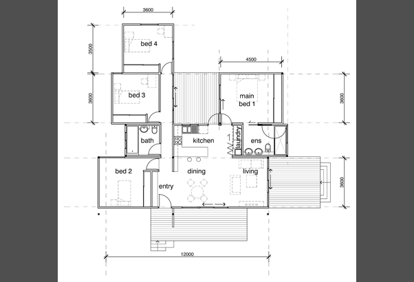
The Spine House has been developed as a range of ‘catalogue housing’ for small lot residential, retirement and leisure property markets. Prefabricated modular ‘spines’ including kitchen, bathroom and laundry form the nucleus of the house. Dry zones (rooms) and other housing features can be added in multiple configurations along the spine to create living environments customised to suit the end-user’s needs.
This product has been designed in conjunction with Arkistruct Ltd, an Australian modular design company. For further information, please visit www.arkistruct.com
Spine House
The Spine House has been developed as a range of ‘catalogue housing’ for small lot residential, retirement and leisure property markets. Prefabricated modular ‘spines’ including kitchen, bathroom and laundry form the nucleus of the house. Dry zones (rooms) and other housing features can be added in multiple configurations along the spine to create living environments customised to suit the end-user’s needs.
This product has been designed in conjunction with Arkistruct Ltd, an Australian modular design company. For further information, please visit www.arkistruct.com
